发布时间:2025-11-13 11:55:07 浏览::
您当前使用的浏览器版本过低,可能存在安全风险,建议升级浏览器,或者用以下浏览器浏览
安澜上海售楼处电话:【预约看房热线】安澜上海官方售楼处电线【售楼处电话/地址】安澜上海售楼处电话:【开发商认证】
徐汇滨江新一代顶流新作,徐汇东安更新项目案名全球发布——【安澜上海】等待入市,营销中心即将盛大开放!
如有问题欢迎来电咨询,预约来电尊享购房优惠,可预约案场内部销售人员,专业一对一热情服务,让您用专业眼光去买房。

一江一河的时代,滨江作为上海超越周期的发展黄金轴,将建设成为全球影响力的世界级滨水封面。滨江资产也成为万千向往的珍稀所在,标记穿越周期的恒贵之地。

安澜上海售楼处电话:【预约看房热线】安澜上海官方售楼处电线【售楼处电话/地址】安澜上海售楼处电话:【开发商认证】
【安澜上海】,占位徐汇滨江珍稀的天然S湾。这里不仅有比肩外滩的优美江岸线,更是徐汇滨江核心段的龙头位置,也是徐汇滨江核心段难得的成片开发,整体兑现的鎏金之地。

安澜上海售楼处电话:【预约看房热线】安澜上海官方售楼处电线【售楼处电话/地址】安澜上海售楼处电话:【开发商认证】
约180万方西岸金融城(2020年总价地王)、约80万方东安综合体(2025年全球地王),双星闪耀徐汇滨江擘画约260万方核心CBD,划界世界级卓越水岸的磅礴之境。
安澜上海售楼处电话:【预约看房热线】安澜上海官方售楼处电线【售楼处电话/地址】安澜上海售楼处电话:【开发商认证】
安澜上海售楼处电话:【预约看房热线】安澜上海官方售楼处电线【售楼处电话/地址】安澜上海售楼处电话:【开发商认证】

采用近五开间朝南的布局,整体面宽超过20米;餐客厨区域为LDKB一体化设计,面积超70平方米,客厅更拥有270°环幕视野;主卧套房内部,四个功能区——睡眠区、衣帽间、卫生间、阳台X空间相互独立,其中睡眠区及卫生间均拥有270°景观面。

安澜上海售楼处电话:【预约看房热线】安澜上海官方售楼处电线【售楼处电话/地址】安澜上海售楼处电话:【开发商认证】
别墅式全景舱聚会客厅:超80㎡客厅,天幕客厅+空中花园+独立吧台+藏酒收纳;
两开间采光主卧设计:8m采光主卧,睡眠区270度全景卧室,衣帽间三重分区收纳,卫生间明媚采光,独立玄关;
豪宅标配:超大电梯厅、奢适三套房、AG真人官方入口独立家政+独立动线、独立中岛式厨房、独立西厨空间
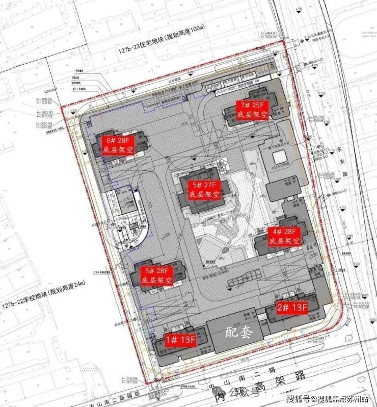
9月5日,由中海地产、招商蛇口、徐汇城投、中旅投资联合体通过产交所获取徐汇东安城市更新项目股权(徐汇区C030301单元127b-24、125-31地块),总出让金额高达439.5亿,刷新全国涉宅用地出让总价纪录,总投资规模巨大,社会关注度极高。

安澜上海售楼处电话:【预约看房热线】安澜上海官方售楼处电线【售楼处电话/地址】安澜上海售楼处电线地块为纯住宅用地,出让总价为98.18亿元,成交楼面价124130元/平方米,规划建筑面积7.9万平方米,定位高端居住社区。
125-31地块,为大规模商住综合用地,出让总价为341.35亿元,成交楼面价为75013元/平方米。AG真人官方入口

东安项目2幅地块的总建设体量超过50万平方米,除了住宅,还配套有约3万方汇聚多种潮流业态的“东安不夜巷”主题商业、约8000平方米的圈层邻里生活聚落、约5500平方米的双会所,并融合办公、研发等复合功能。

安澜上海售楼处电话:【预约看房热线】安澜上海官方售楼处电线【售楼处电话/地址】安澜上海售楼处电话:【开发商认证】
127b-24地块占地面积约3万平方米,容积率2.5,限高100米,总住宅面积约7.5万平方米。
根据设计方案显示,项目拟建2栋13层小高层+5栋25-28层高层,总户数290户。


通过整层抬板技术,整个社区住宅楼的地基被整体性地抬高4米,和周边城市界面形成显著高差,这让每栋楼犹如“城市中心的浮岛”。

抬板设计让传统的地下车库“浮出水面”,变成了地上一层,拥有自然采光、通风和庭院景观;
同时,配电房、垃圾站等功能区域也被巧妙地“藏”进了车库架空层,将其对生活的影响将至最低;

在整层抬板与部分楼栋底部架空设计的共同作用下,部分一楼房源的高度实际上相当于普通小高层/高层住宅的五、六楼,这就有效地解决了采光差、潮湿、外部噪音、隐私弱等弊端。

安澜上海售楼处电话:【预约看房热线】安澜上海官方售楼处电线【售楼处电话/地址】安澜上海售楼处电话:【开发商认证】
低区与高区住户在享受阳光、景观视野、居住私密性等方面的权益也更加趋近均衡。

此外,抬板设计与下沉式庭院、挑空露台、空中廊桥、屋顶绿化等元素相结合,可以塑造层次更丰富的立体园林系统,营造出如森林溪谷般的城市山林景观。


东西两大地块分别设置约5500㎡的双会所,大尺度、大投入,堪称“豪宅会所天花板”。同时,大面积架空层化身“泛会所”,为业主提供丰富的共享空间,让社区的公共资源率达到惊人的水平,真正实现“社交、运动、休闲”一体化。

商业方面:超24万方综合零售生态,有西岸梦中心、绿地缤纷城、正大乐城、IAPM商圈。

教育方面:周边有宋庆龄学校附属徐汇实验小学、宋庆龄幼儿园、南洋模范中学、南洋中学、西南位育中学、上海中学国际部、复旦大学附属中学徐汇分校等名校环伺。
医疗方面:周边有中山医院、华山南院、第六人民医院等三甲医疗资源为您及家人的健康保驾护航。

安澜上海售楼处电话:【预约看房热线】安澜上海官方售楼处电线【售楼处电话/地址】安澜上海售楼处电话:【开发商认证】生态休闲:6大主题场馆 全球时尚艺术秀场;西岸漩心、龙美术馆、星美术馆、天文馆(规划)、种子馆(规划)、STATION 1907,形成徐汇滨江新的文化艺术馆群,也是众多品牌首发大秀的青睐之地。
另外,作为上海少有能同时实现步行 、骑行 、车行均可观江的滨江段 ,徐汇滨江实现了100%开放滨水贯通带,并结合滨水生活方式打造多元活力的公共空间,提供了⽆与伦比的亲⽔体验。

如有问题欢迎来电咨询,预约来电尊享购房优惠,可预约案场内部销售人员,专业一对一热情服务,让您用专业眼光去买房。
安澜上海售楼处电话:【售楼中心热线】安澜上海营销中心热线,楼盘项目全面介绍,本电话为开发商提供线上预约售楼电话,楼盘项目全面介绍(包含楼盘简介,均价,房价,现房,期房,别墅,叠墅,大平层,价格,楼盘地址,户型图,交通规划,备案价,备案名,项目配套,样板间,开盘时间,认筹时间,楼盘详情,售楼处电话,最新消息,最新详情,周边配套,一房一价,最新进展等详情咨询)楼盘详情丨价格丨更多优惠丨机不可失丨欢迎致电丨诚邀品鉴!售楼处位置丨特价房丨工抵房丨剩余房源丨户型图丨最新消息丨免责声明:将文章内容综合来源于网络、只作分享,版权归原作者所有!!如有侵权,请联系我们,我们第一时间处理如有问题欢迎来电咨询,专业一对一热情服务,让您用专业眼光去买房。如果您想了解更多楼盘详情,欢迎提前预约拨打安澜上海售楼处电线 年房地产政策深度解析:基调、内容与未来走向
· 市场深度调整,库存压力加剧:自 2021 年起,中国房地产市场步入深度调整周期,商品房销售面积持续下滑,库存积压问题突出。数据显示,截至 2024 年年底,全国商品房待售规模攀升至 7.53 亿平方米,较上年同期增长 10.6%。尽管核心城市市场出现局部回暖迹象,但整体尚未完全企稳,区域分化格局愈发显著。
· 经济支柱作用凸显:房地产作为国民经济的支柱产业,对经济增长、地方财政收入及居民财富效应具有深远影响。2025 年政府工作报告将经济增长目标设定在 5% 左右,房地产市场的稳定运行被视为实现这一目标的关键支撑。
· 供需关系根本性转变:房地产市场供需格局已从过去的 “供不应求” 转向 “供过于求”,尤其是二三线城市库存去化周期拉长,亟需政策介入引导,优化供需结构。
· 从调控到托底的导向切换:2024 年 9 月中央政治局会议首次明确 “促进房地产市场止跌回稳” 的目标,标志着政策基调从严格调控转向宽松支持,“稳住楼市” 成为支撑宏观经济的重要举措。2025 年政府工作报告进一步将其纳入总体工作要求,凸显房地产市场稳定的战略意义。
· 结构性优化取代 “一刀切”:政策不再采取统一调控模式,而是聚焦供需两端的结构性失衡问题,通过需求端激活购房潜力、供给端化解库存与风险,推动市场实现动态平衡。
· 财政政策精准发力:2025 年我国赤字率拟按 4% 左右安排,地方政府专项债额度提升至 4.4 万亿元,资金重点投向土地收储及存量商品房收购领域,为市场调节提供资金保障。
· 货币政策适度宽松:明确 “适时开展降准降息” 的政策导向,当前 5 年期以上贷款市场报价利率(LPR)维持在 3.6% 水平,后续仍有下调空间,旨在进一步降低购房融资成本。
结合 2025 年政府工作报告及近期中央与地方政策文件,最新房地产政策围绕需求端、供给端及中长期改革三大维度展开,形成全方位调控体系:
· 限购松绑持续深化:2024 年已有广州等核心城市全面取消限购,北京五环外、上海外环外等区域放宽购房套数限制,深圳、上海等城市下调非户籍居民购房社保缴纳年限(以上海外环外为例,从 3 年缩减至 1 年)。2025 年,核心城市预计进一步放宽限购政策,释放更多刚需与改善性需求。· 限售限价全面松绑:太原、深圳、成都等多地取消商品房限售政策,杭州、天津等城市不再实施限价措施,降低房产交易门槛,提升市场流通活力。
· 首付与利率双重下调:全国范围内首套及二套住房的最低首付比例已统一下调至 15%,部分城市房贷利率曾进入 “2 时代”,后调整至 3%-3.1% 区间;存量房贷利率批量下调至 LPR-30BP,平均降幅约 0.5%,显著减轻购房者月供压力。· 税收优惠力度加大:契税优惠覆盖面积标准从 90 平方米提升至 140 平方米,首套房契税税率降至 1%,二套房税率调整为 1.5%-2%;一线 年以上的住房免征增值税,有效降低房产交易成本。
· 城中村改造拉动需求:2025 年计划新增 100 万套城中村及危旧房改造项目,重点推行货币化安置与房票安置模式,直接撬动商品房市场需求。
· 贷款额度与首付比例调整:济南等城市将公积金贷款额度计算倍数从账户余额的 15 倍提高至 25 倍,二套房首付比例从 30% 降至 20%,同时放宽住房套数认定标准。· 定向支持特殊群体:泉州市对多子女家庭给予 20 万元公积金贷款额度上浮优惠,济南将灵活就业人员公积金起贷期限从 1 年缩短至 6 个月,扩大政策受益范围。
· 严控新增用地供应:政府工作报告明确提出 “合理调控新增房地产用地供给”,对库存高企地区将大幅缩减土地出让规模,从源头优化市场供需关系。
· 土地收储加速推进:利用 4.4 万亿元专项债资金支持地方政府回收闲置土地,广东省已率先发行超 300 亿元专项债用于该领域,为全国提供实践样本。· 商品房收储扩容提质:超 80 个城市发布存量商品房收购公告,收购房源用于配售型或配租型保障性住房;央行 3000 亿元保障性住房再贷款支持比例从 60% 提升至 100%。2025 年将进一步放宽收购主体、价格及用途限制,加快库存消化进程。
· 融资协调机制发力:截至 2024 年末,房地产融资 “白名单” 项目贷款审批规模超 6 万亿元,支持超 1500 万套住房建设交付。2025 年将继续扩大融资覆盖范围,防范房企债务违约风险。· 保交房工作持续推进:强化项目交付监管,确保在建项目顺利竣工交付,提振购房者市场信心。
· “好房子” 建设落地实施:首次被写入政府工作报告,强调以绿色、低碳、智能、安全为核心的住宅建设标准,完善配套规范体系。2025 年多地预计出台细化政策,满足居民高品质居住需求。
· 租购并举与保障房体系建设:加快构建 “市场供给 + 政府保障” 双轨住房供应体系,扩大保障性住房筹集规模,2025 年 1 月地方国企系租赁企业开业数量实现显著增长。
· 基础性制度改革深化:稳步推进商品房预售制、土地供应制度及房地产税收制度改革,逐步建立可持续的房地产发展长效机制。
· 城市更新工程提速:持续推进城镇老旧小区改造与城市更新项目,优化规划与土地管理政策,完善资金支持机制,激发市场主体参与积极性。
· 市场成交回暖迹象:2024 年四季度,北京、上海、广州、深圳等一线城市商品房成交量大幅增长,其中深圳新房成交量同比涨幅高达 158.9%,二手房成交创下 46 个月以来的新高;南京、成都等核心二线城市市场也呈现复苏态势。
· 市场预期有所改善:密集出台的政策有效提振市场信心,10 月房地产商务活动指数回升 2.5 个百分点,市场预期指数提升 1.8 个百分点,行业信心逐步修复。
· 房企流动性得到缓解:融资协调机制的实施使房企流动比率与速动比率有所提升,2024 年三季度房企存货周转率较 2022 年同期出现改善,资金周转压力减轻。
· 政策效力持续性不足:2024 年 “5・17” 新政实施后,市场活跃度短暂提升,但后续逐步回落,显示政策对市场的拉动效应存在递减现象。
· 区域分化格局加剧:一线城市市场回暖明显,但二三线城市库存去化压力依然较大,库存消化周期普遍偏长,市场复苏不均衡。
· 存量收储推进受阻:存量商品房与土地收储过程中面临价格协商困难、资金成本较高、供需错配等问题,如广州收储项目对房源面积与位置要求严苛,限制了收储规模的扩大。
· 居民购房意愿修复滞后:尽管政策持续降低购房成本,但受经济下行压力、居民收入预期不稳定等因素影响,购房意愿尚未完全恢复。
· 购房门槛显著降低:限购松绑、首付比例下调、房贷利率下降及税收优惠政策叠加,大幅降低了购房成本,尤其对 140 平方米以下的改善性住房需求支撑作用明显。
· 需求结构有效激活:城中村改造货币化安置与公积金政策优化直接拉动刚需群体入市,限购放宽与 “好房子” 建设则精准满足改善性住房需求。
· 购房信心持续增强:保交房政策落地与融资协调机制运行,有效缓解了烂尾风险;税收与利率优惠减轻了经济负担,双重因素共同提振居民购房意愿。
· 现金流压力得到缓解:融资 “白名单” 扩容与存量房收储政策,帮助房企加快资金回笼,改善现金流状况,降低债务违约风险。
· 开发模式加速转型:政策引导下,房企需从规模扩张驱动转向质量效益驱动,加大绿色建筑、智能技术等领域的投入,适配 “好房子” 建设要求。
· 库存压力逐步减轻:专项债支持的土地与商品房收储加速了库存去化,但需解决收储价格分歧与收益不足等问题,才能实现可持续去库存。
· 财政压力得到舒缓:专项债与保障性住房再贷款为地方政府提供了稳定的资金来源,缓解了对土地财政的依赖,降低了地方债务风险。
· 调控自主权进一步扩大:因城施策与收储政策赋予地方政府更大的调控灵活性,但需在收储收益与债务风险之间寻求平衡。
· 城市发展动能增强:城中村改造与老旧小区改造成为地方稳投资、扩内需的重要抓手,同时推动城市功能升级与人居环境改善。
· 支撑经济增长目标:房地产市场止跌回稳有助于拉动固定资产投资与消费,为实现 5% 的经济增长目标提供重要支撑。
· 防范系统性金融风险:保交房与融资协调机制的实施,降低了房企债务违约风险,避免风险向金融体系传导,维护了经济金融稳定。
· 推动经济结构优化:政策引导房地产市场供需再平衡与高质量发展,助力经济从房地产依赖型向多元化增长模式转型。
· 核心城市限购持续松绑:北京、上海、深圳等核心城市可能进一步放宽郊区或大户型住房限购政策,释放更多潜在需求。
· 金融支持力度加码:5 年期以上 LPR 有望进一步下调,房贷利率可能跌破 3%;融资 “白名单” 机制将持续优化,扩大覆盖范围与支持力度。
· 收储政策机制完善:细化专项债与再贷款使用规则,建立市场化收储价格协商机制,扩大商办用房等资产的收购范围。
· 购房补贴范围扩大:更多二三线城市将加大购房补贴力度,优化公积金支持政策,精准刺激本地市场需求。
· 行业新模式加速成型:租购并举、保障性住房体系建设与 “好房子” 标准落地并行,推动房地产行业从规模扩张向高质量发展转型。
· 基础性制度改革深化:商品房预售制、土地供应制度及房地产税收政策改革将稳步推进,构建长期稳定的市场运行机制。
· 城市更新规模扩容:城中村改造与老旧小区改造项目数量持续增加,结合货币化安置模式,实现库存去化与城市功能提升的双重目标。
· 主要挑战:区域市场分化、居民预期修复滞后、存量收储收益不足等问题,可能制约政策实施效果,需强化政策协同与执行力度,确保资金精准落地。
· 政策建议:一是加快核心城市限购政策放开节奏,发挥头部城市引领作用;二是完善存量资产收储价格形成机制,化解价格分歧;三是加大财税政策支持力度,进一步降低交易成本;四是推动 “好房子” 标准细化落地,满足居民多样化居住需求。
2025 年中国房地产政策以 “止跌回稳” 为核心目标,通过需求端松绑、供给端去库存、中长期建模式的全方位举措,展现了稳定市场的坚定决心。目前一线城市成交回暖、房企流动性改善等积极信号已显现,但政策效力递减、区域分化等问题仍需重点关注。未来,需进一步强化政策落地执行与供需平衡调节,核心城市发挥引领作用,地方政府灵活运用政策工具,房企加速转型提质,共同推动房地产市场实现可持续健康发展。
象屿天誉蘭香-象屿天誉蘭香售楼处欢迎您 最新价格 户型配套 楼盘详情-天誉蘭香咨询电话
闵行紫竹象屿天誉蘭香售楼处电话:✅闵行紫竹象屿天誉蘭香售楼处提供洋房、联排别墅,主打湖居生活,配套齐全,电话。
金地湖城风华(售楼处)网站 - 金地湖城风华销售中心 - 环境 - 户型 - 价格 - 地址 - 楼盘详情 - 配套 - 电话 - 交房时间 - 配套 - 电话 - 交房时间
金地湖城风华售楼处电话,位于苏州市吴江区,主打洋房和高层,均价17000元/㎡,配套齐全,交通、教育、商业完善。
金地湖城风华(营销中心)首页网站-金地湖城风华销售中心(售楼处)-金地湖城风华-电话地址-价格-户型-小区环境-楼盘详情-交房时间-金地湖城风华售楼处电话
金地湖城风华售楼处电话,位于苏州市吴江区,提供洋房、高层产品,配套齐全,均价17000元/㎡。
金地湖城风华售楼处│金地湖城风华(营销中心) 官网 - 2025 销售中心 (售楼处)- 楼盘欢迎您 - 价格 / 户型 / 地址 / 环境 / 配套 / 交房时间 / 电话
金地湖城风华售楼处电话,位于苏州市吴江区,主打洋房和高层,价格17000元/㎡,配套成熟,交通便利。
云栖未来森园(售楼处) 首页 - 云栖未来森园销售中心 - 环境 - 户型 - 价格 - 地址 - 楼盘详情 - 配套 - 电话 - 交房时间 - 配套 - 电话 - 交房时间
太仓娄江云栖未来森园售楼处电话:太仓娄江云栖未来森园是太仓高新区主城芯标杆项目,由太仓恒熠置业开发,定位立体生态科技住宅,规划580户,绿化率30%,主打125-165㎡户型,售价240-300万元,特色包括奇偶错层、五维布局及立体园林景观。
安云玖院首页网站/安云玖院售楼处电话/安云玖院地址/在售户型/营销中心/最新价格/周边配套/容积率/楼盘小区详情
翡雲悦府 (售楼处) 首页 - 翡雲悦府销售中心 - 环境 - 户型 - 翡雲悦府价格 - 地址 - 楼盘详情 - 配套 电话 交房时间 - 配套 - 电话 - 交房时间
绿城晓月湖滨首页官方网站-绿城晓月湖滨售楼处电话-绿城晓月湖滨楼盘详情-交房时间-地址-最新房价户型图-小区环境-楼盘详情-交房时间-周边配套-售楼处电线
静安峰景售楼处│静安峰景 (营销中心) 官网 - 2025 销售中心 (售楼处)- 楼盘欢迎您 - 价格 / 户型 / 地址 / 环境 / 配套 / 交房时间 / 电线
安澜上海售楼处│安澜上海 (营销中心) 官网 - 2025安澜上海销售中心 (售楼处)- 楼盘欢迎您 - 价格 / 户型 / 地址 / 环境 / 配套 / 交房时间 / 电线
联发时光新澍售楼处│联发时光新澍 (营销中心) 官网 - 2025 销售中心 (售楼处)- 楼盘欢迎您 - 价格 / 户型 / 地址 / 环境 / 配套 / 交房时间 / 电线
百悦荟售楼处电话-百悦荟(百悦荟)官方首页网站-百悦荟最新房价-户型-容积率-小区配套-楼盘详情/价格/户型
奉发云境-奉发云境售楼处电话-奉发云境销售中心(奉发云境)-小区环境-户型-价格-地址-楼盘详情-周边配套-奉发云境售楼处电话




